
Accurate measurements are the foundation of any successful project. Elk3 offers AS-Built measurement services, capturing the existing conditions of your space with precision. This information becomes crucial for renovations, additions, or any project where understanding the current state of a structure is essential.

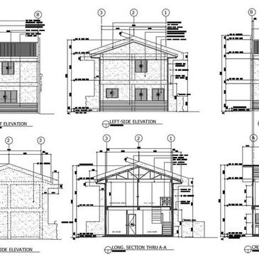
Our commitment to detail extends to comprehensive site plans, elevation plans, and cross-sections. Elk3 provides a 360-degree view of your project, allowing you to visualize and understand the design from every angle.

We leverage Chief Architect's powerful 3D modeling capabilities to create realistic and immersive representations of your designs.
Using this software to generate accurate and visually appealing 3D renderings that give clients a clear understanding of the proposed project.

Elk3 employs AutoCAD's robust set of architectural drafting tools to create detailed floor plans, elevations, and sections.
The software allows for the accurate representation of walls, doors, windows, and other architectural elements with precise measurements
Copyright © 2024 elk3 - All Rights Reserved.
We use cookies to analyze website traffic and optimize your website experience. By accepting our use of cookies, your data will be aggregated with all other user data.